近年來,很多水泥廠為了減小能耗并有效利用原有的生產線,紛紛對原有的小型水泥窯系統進行提產改造,伴隨著窯系統的改造,相應的裝備也面臨著更新。本文介紹廣東廣信青洲水泥有限公司水泥窯由1500t/d提產改造到2500t/d生產線后,窯尾除塵器電改袋過程中存在的問題,通過對整個除塵工藝系統通風狀況的分析,總結出了該技改過程中電改袋項目改造的方法與相關改造實施的過程。
1原電除塵器技術參數和要求
該生產線窯尾配備余熱發電系統。原電除塵系統技術參數:電除塵器規格(16.26×9.2×13.1)m;處理風量350000m3/h(110℃);煙氣溫度110℃(max250℃);標態下入口濃度<80g/m3;電場風速1.06m/s;電場截面積110.4m2;壓力損失300Pa。
改造后袋除塵系統技術要求:處理風量≥420000m3/h;標態下出口濃度≤30mg/m3;標態下壓縮空氣≤4m3/min;阻力≤1300Pa。
改造后備件壽命要求:濾袋≥4年;脈沖閥和袋籠≥5年;電儀控制和監測裝置≥1年;廢氣風機及電動機≥5年(保留電除塵殼體、集灰斗及螺旋輸送機)。提產后要求整個系統的處理風量較之前增加20%,這使得整個回轉窯通風系統的負荷都偏大,相應管道風速也偏高,系統阻力增大,原有的風機已經無法滿足提產后的通風要求。因此,提產后在窯尾除塵器電改袋項目中,控制系統阻力,滿足最新的環保排放要求,合理利用原電除塵器的殼體及內部空間,比簡單的電改袋項目顯得更為重要。風機改造部分,由于增容較大,原風機殼體或電動機都無法使用,須更換新的風機。為縮短工期并節省生產廠區的空間,新風機的選用須在利用原有主風機基礎尺寸進行設計,因此風機基礎的加固工作須在停機改造前設計并施工完成。
2收塵設備改造設計方案
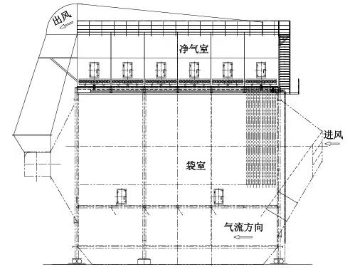
根據參數要求,窯尾除塵器電改袋時,原有電除塵器空間緊湊,水平截面較小,且寬度也較窄。風量提高后,若按照常規的袋除塵器改造方式,需在設備殼體內部設置出風風道,這樣要使改造后的袋除塵器滿足合理的過濾參數,就會使濾袋間距很小,出風風道也較窄,這給整個收塵系統的穩定低阻工作帶來很多不穩定因素。
因此,為確保改造后袋除塵器的過濾面積,我們選擇上出風的形式,在除塵器水平截面采用滿堂布置濾袋的方式設計,使用多節袋籠、分室離線清灰的布置方案,這樣可保證設備的通風性能,也能設計合理的出風通道,減小設備系統阻力。具體布置見圖1。




