前言 cementren.com
山西某集團水泥建材有限公司生產線于2013年建成投產,設計能力為3200t/d,原生產線燒成系統采用單系列五級旋風預熱器在線分解爐,回轉窯ф4.3m×64m。為充分挖掘原有裝備的潛力、進一步降低系統能耗、提升燒成系統的各項技術經濟指標,2020年該公司與德國洪堡KHD合作,引進洪堡的技術對燒成系統進行熱工標定和診斷分析,出具有針對性的改造方案,利用洪堡的多項專利技術,熟料產量、單位熱耗、系統阻力均取得了極大改善,經濟效益和社會效益明顯。
?
1.改造前工廠的狀況及存在的主要問題分析
1.1工廠改造前的基本狀況
該生產線采用煙煤為燃料,煤質較好,原、燃材料的化學分析見表1、表2、表3。改造前燒成系統熱耗指標偏高、篦冷機冷卻效果不好,改造前的燒成系統各項指標及參數見表4。
表1 煤的工業分析 煤灰的元素分析


表2 生料和熟料化學組成質量分析(%)

表3 生料和熟料的三率值

表4 燒成系統主要技術指標(改造前)

1.2主要問題分析

1.2.1原預熱器系統采用單系列五級旋風預熱器,為使預熱器達到熟料4950t/d,對現有預熱器系統一些關鍵部件進行升級改造和更換。
1.2.2經過計算,高溫風機、窯主驅動、燃燒器不能滿足在系統增加熟料產量后的設備選型的要求能力。
1.2.3冷卻機篦床面積80.46m²,提產前單位負荷47.8t/(d.m²),篦冷機規格偏小,篦床單位負荷較高。已不適合進一步增加熟料產量。
2.改造內容
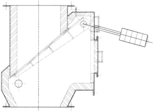
2.1分解爐擴容改造
充分利用了預熱器框架的原有空間,分解爐整體加高了一層,并使用了德國洪堡KHD的PYROBOX分解爐燃燒裝置,以改善分解爐的燃燒。分解爐改造示意圖見圖1。

圖1 分解爐改造示意圖
2.2C1~C5翻板閥和撒料箱更換
為降低系統內漏風、提高旋風筒分離效率,將現有C1~C5翻板閥更換為動作靈活、鎖風效果好的具有德國洪堡KHD專利技術的新型翻板閥,新型翻板閥的形式見圖2-1;同時對各級撒料箱更換成KHD可調節型撒料箱,并對撒料箱位置、結構進行了調整和優化,撒料箱形式見圖2-2

圖2-1 洪堡KHD設計的新型翻版閥

圖2-2 新型可調撒料板
2.3 內筒
為了提高預熱器系統的各級分離效率,將預熱器各級旋風筒的現有內筒,更換成德國洪堡KHD新型分離效率高、壓損低的內筒。
2.4 旋風筒頂部
德國洪堡KHD設計將4級和5級旋風筒的頂部高度適當增加,并相應的增加4級和5級旋風筒進風管的高度。旋風筒頂部改造后示意圖見圖3。

圖3旋風筒頂部改造后示意圖
2.5 一級雙旋風筒
將預熱器現有的雙旋風筒更換成兩個KHD最新一代的C1高效旋風筒,以適應熟料提產后的要求,改造后示意圖見圖4。

圖4:改造后示意圖
2.6回轉窯
回轉窯主電機功率提高到630kw,回轉窯的最高轉速提高到5r/min。以實現薄料快燒,進一步深挖回轉窯的潛力。
2.7高溫風機
根據洪堡PyroPro計算書,按照提產后高溫風機的風量和壓力,更換成2600KW電機及配套風機。
2.8燃燒器
更換成德國洪堡最新一代的燃燒器,具有旋流風、直流風調整靈活、推力大、火力大、生產適應性強。

2.9 篦冷機改造
篦冷機改為步進式篦冷機,篦床有效冷卻面積提高到105.4m²,提產后篦床負荷:46.9m2/t.d
2.10其他輔助系統
與燒成系統上下游配套的生料磨、熟料拉鏈機和入庫斗提等輔助系統進行適當改造和能力提升,使之與燒成系統所需能力相匹配。
3.改造后的效果
燒成系統改造前后主要指標對比詳見下表5。從此表可以看出改造后熟料產量從3852t/d增加到4950t/d,提產幅度為28.5%,在大幅度提產情況下預熱器的阻力僅提高了700Pa,系統降阻的效果非常明顯,同時預熱器的出口煙氣溫度下降了約20℃;冷卻機的應用,使二、三次風溫提升明顯,燒成系統熟料單位熱耗從原來的778kcal/kg-熟料,降低到728kcal/kg-熟料,實現了提產、節能、降耗的改造預期目標。
表5 燒成系統改造前后參數對比

聲明
德國洪堡技術為洪堡專利技術,在德國、日本、美國、中國均有發明專利,受法律保護。如有仿制、盜用等侵權行為,洪堡公司及中航國際北京公司保留追責、主張侵權責任的一切權利。
更多技術及技改詳詢:
010-87091245,18910037609

供稿:葛全軍、朱紹民


