未來水泥將以總碳量控制總產量,從現在的規模為王、滿產高產向減污降碳、節能降耗轉變。“雙碳”指標控制的背景下,短期能耗達標是未來水泥企業的生命線。
由此,江蘇吉能達環境能源科技有限公司(以下簡稱“吉能達”)推出了JND-GB系列超細粉選粉機及其配套的超細磨技術,為“1.高細度粉磨生產高混合材摻量水泥,熟料摻量最低,實現混凝土碳排放為零;2.超細化工業固廢替代熟料降低成本技術,工業固廢超細化利用,熟料下降20%,早期強度不降反升,顆粒級配更趨合理”做出了很大的貢獻。
據水泥人網了解,為了充分發揮粉磨機械的功效,水泥粉磨工藝系統通常配備相應的選粉機械——分級機。分級機的種類和型式多種多樣,粉磨系統如何選擇合適的分級機輔助系統提高產量、提升成品品質、降低能耗是需要綜合考慮的問題。
吉能達JND-GB系列超細粉選粉機是在借鑒國際超細粉分級技術的原理上,聯合多家粉體工程科硏院所研制開發的產品。該設備采用側進料、下進風的結構,整合了平面渦流、重力沉降、離心分離三種分級方式,分級效率更高,細度在200-1000的范圍內調節方便;簡化了系統配置 ,節能效果顯著。

一 主要性能技術參數
(一)應用領域:
由吉能達開發研制推廣的超細粉選粉機,分別成功應用于超細礦渣粉、超細砼摻和料、超細水泥和其它比表面積要求650-1000m2/kg的礦物質方面的分選。
(二)技術特點:

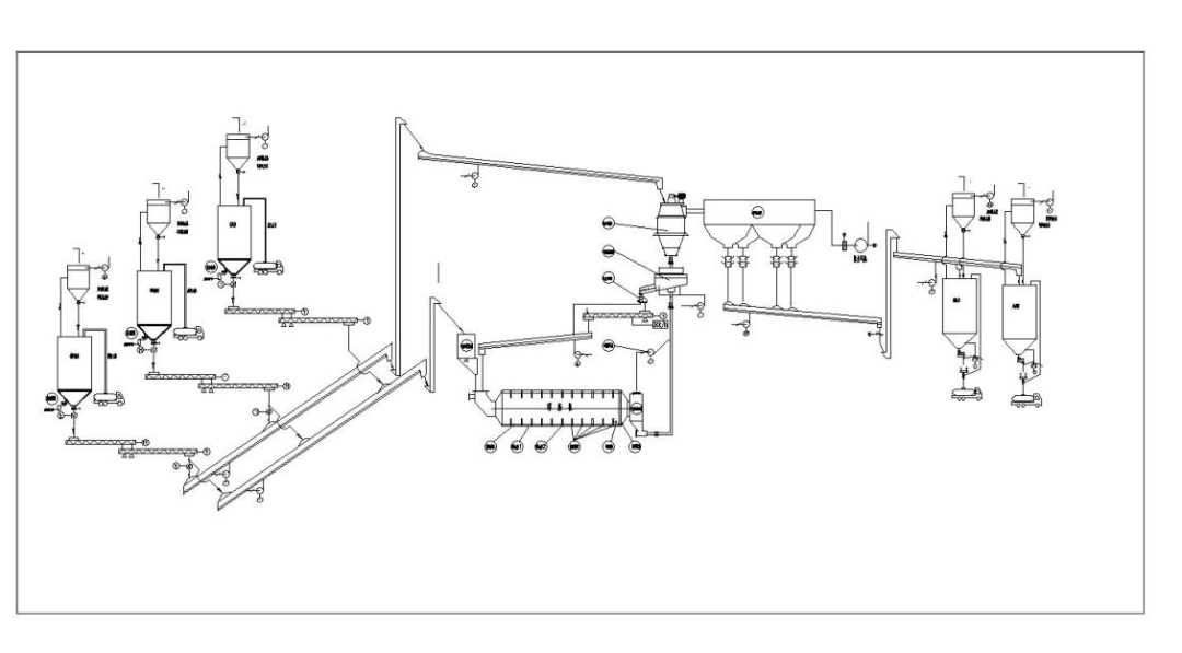
圖1超細砼摻和料粉磨系統的工藝流程圖

圖2 JND-GB系列選粉機結構示意圖
圖1是吉能達應用于超細礦渣粉、超細砼摻和料、超細水泥分選方面的圈流粉磨分選系統的工藝流程圖,由超細分級機、球磨機組成的圈流粉磨分選系統的特點如下:
(1)使用JND-GB系列超細分級機為生產高比表超細粉產品創造了必要的條件。JND-GB系列超細分級機,對超細微粉的分級精度更高,微粉粒度在 1~20 μm 范圍內任意調節,非礦超微粉制備細度范圍:650m2/kg~1000m2/kg。配套高效球磨機,使得物料加工過程中物料溫度低于110℃,粉磨效率更高。
(2)選粉機的分級效率達到80%以上。由于選粉效率高,分選系統的生產能力大幅度增加。與開路粉磨分選系統相比,可增產 25%~50%;增加的幅度隨細度的減小而加大。
(3)電耗降低。系統粉磨單位電耗可比開路粉磨系統降低20%~30%。
(4)清潔排放,文明度高。工藝流程簡單,系統選用高效率的微粉收集設備,全負壓操作使粉塵排放量(標況下)小于10 mg/m3。
(5)獨特設計的分級流場和立式分級輪,可以將產品粒度進行分級,降低了粉體與分級輪的摩擦,大大地延長了分級輪的使用壽命;
(6)物料接觸部分采用陶瓷或優質奧氏體不銹鋼防磨,圓角設計,避免了渦流產生的能耗。流體阻力減小、磨損大大減小。符合GMP要求。
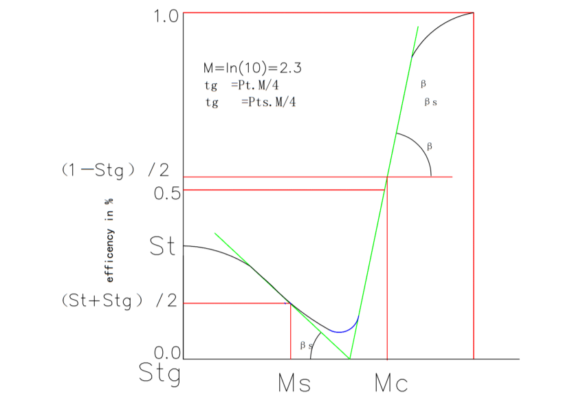
(三)選粉機的分級特性
1.切割粒徑d50為:
d50=(3/vt)√(Qη/ρsπh)式中,Q-進風口風量 (m3/h),η-氣體的粘度 (Pd·S),ρs一顆粒密度 Kg/m3 )。vt一顆粒的切 向速度 (m/s), h一轉子高度 (m) 將轉子轉速 :n=60vt/2πrp(r/min)代入上式化簡得:d50為:d50=(90/rpn)√(Qη/ρsπ3h)
由式上式可知:顆粒的切割粒徑d50進口風量Q的開方、 氣體粘度η的開方均成正比;與轉子的直徑rp轉子的轉速n顆粒密度ρs的開方 、轉子高度 h的開方則成反比關系。
2.選粉機的實際效率:
Tromp曲線:

3.分級曲線簡化座標:


(四)主要技術性能

二 結構與工作原理概述
(一)結構概述
本機含有殼體、分級轉子、撒料裝置、驅動裝置、傳動軸等部件。殼體部分由上、下錐體、密封頂蓋灰等組成。在殼體裝有支撐板、導向葉片、空氣密封圈。殼體側面與頂蓋開設有檢查門。殼體上部承受選粉機主軸所聯結的電動機、減速器、支座等重量。
回轉部分由轉子、聯軸器、主軸總成等組成。轉子用鍵固定在主軸上,主軸通過傳動部分而轉動。轉子是選粉機的核心部分。主軸與軸承均安裝在主軸套上。軸承用干油潤滑,采用橡膠骨架油封密封。
(二)工作原理
粉磨后的物料喂入選粉機的進料口,在一次風作用下分散并隨氣流流向導向葉片和轉子間,物料在旋轉氣流中進行分選。分選主要是依據離心力與旋轉氣流的向心力的平衡,達到有效的分級;二次風口是氣流分散裝置的進風口,粗顆粒向下運動落入氣流分散裝置,到導葉片處被進入的二次風吹散、分選;繼續向下流動的粗顆粒經灰斗處時再受進入的三次空氣的再一次分選,使之進一步除去混在粗粉中的細粉,最后選下的粗粉經粗粉出料口排出。細粉通過轉子中心和空氣一起由彎管排出,經收塵器收集成為成品。
本機為負壓操作,選粉空氣可以是含塵氣體、外部空氣或兩種空氣的混合氣體。一、二次氣體從各自的空氣入口進入選粉機,通過具有一定角度的固定導向葉片與轉子的格板形成渦流,三次空氣由氣流分散裝置下部選粉機。
吉能達生產車間


吉能達發貨現場


吉能達設備安裝調試中


據水泥人網了解,吉能達公司近年來已經與國內包括安徽海螺水泥、浙江南方水泥、江西萬年青水泥、臺泥等絕大多數水泥集團建立合作。
“創新無止境,價值共分享”吉能達人會以更飽滿的熱情為“雙碳”管控下的水泥及其相關的行業做出應有的貢獻。
詳細的結束資料可以咨詢吉能達公司!
聯系人:
陳經理:18005100099
張總:18910037609


